Frauen leben im Neubühl, Flexibler Einband
Frauen leben im Neubühl
- Vom Wohnen in einer Ikone
Sie können den Titel schon jetzt bestellen. Versand an Sie erfolgt gleich nach Verfügbarkeit.
- Herausgeber:
- Sandra König, Henriette Lutz, Ulrike Schröer
- Verlag:
- Jovis Verlag GmbH, 11/2025
- Einband:
- Flexibler Einband
- Sprache:
- Deutsch
- ISBN-13:
- 9783986121990
- Artikelnummer:
- 12216824
- Umfang:
- 200 Seiten
- Sonstiges:
- 70 b/w illustrations
- Gewicht:
- 500 g
- Erscheinungstermin:
- 17.11.2025
Klappentext
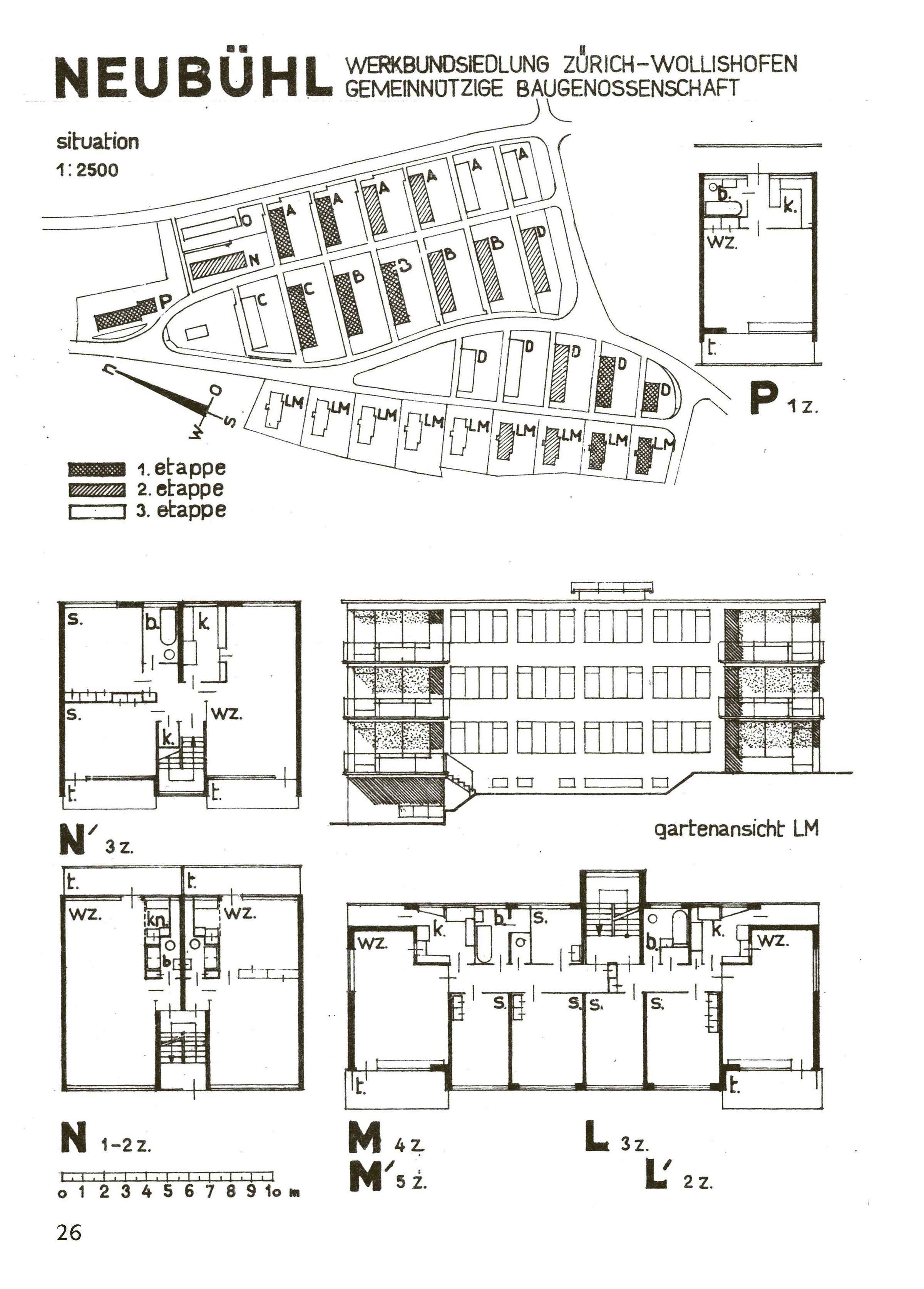
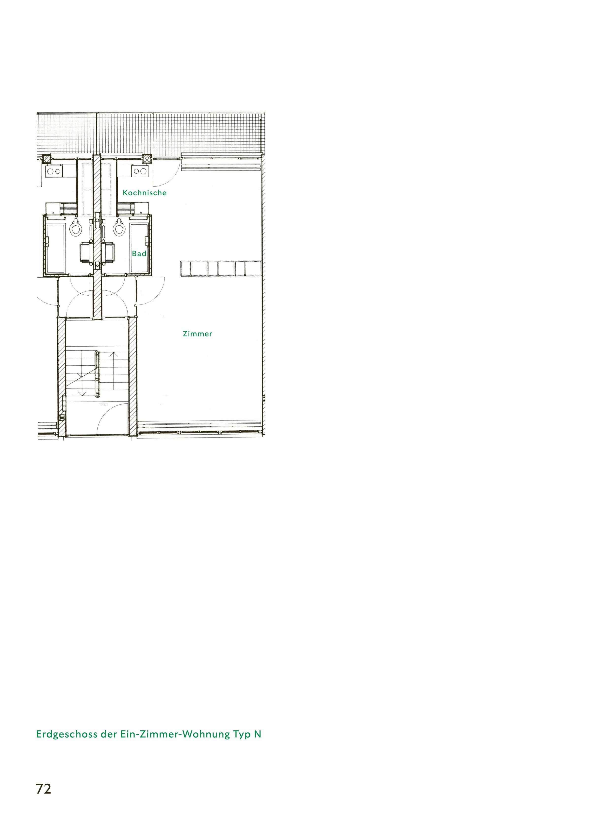
"Living here is like life on a permanent holiday," reads an advertisement, published in 1932, for the newly inaugurated Werkbund housing development Neubühl in Zurich. Even today, with its intelligently conceived outdoor spaces, residential infrastructure, and compact, rational floor plans, it remains a significant living example of the New Building (Neues Bauen) in Switzerland. It is still so beloved by its residents that many spend most of their lives there. This is made possible by the skillful integration of a variety of housing types-from small studios to six-room townhouses. In their book, the editors compilecontributions on the history, typology, and significance of the housing development, supplemented by portraits of current female residents, to illuminate their lived environment and personal experiences.
With a contribution by Nina Hüppi
- Women as users and protagonists of modernist architecture
- Interviews with contemporary residents as a research and teaching method
- Shows the discrepancy between male construction and female use
Biografie (Sandra König)
Sandra König ist seit 1991 Mitarbeiterin der Kronen Zeitung und war dort seither in unterschiedlichen Redaktionen tätig. Seit Mai 2010 arbeitet sie in der Ombudsfrau-Redaktion von Barbara Stöckl und bildet sich privat im Gesundheitsbereich weiter.Anmerkungen:
Bitte beachten Sie, dass auch wir der Preisbindung unterliegen und kurzfristige Preiserhöhungen oder -senkungen an Sie weitergeben müssen.
